现代轻奢风

每天给你分享一个案例设计
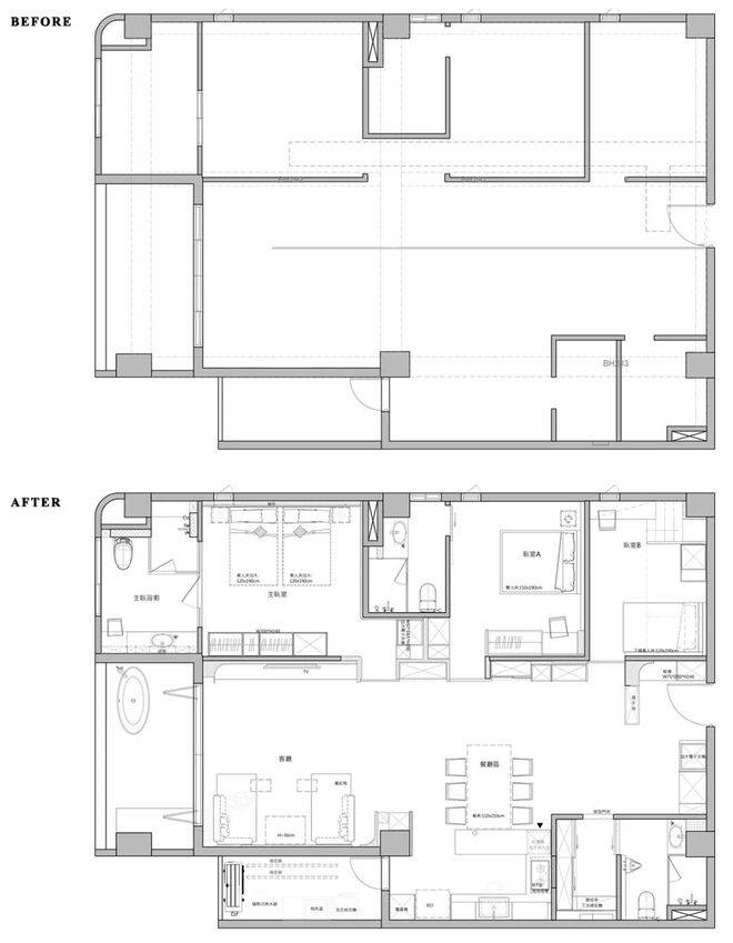
这套住宅 面积:139㎡(套内)
格局:3室2厅 2 卫
人数:3大
由寬向設計设计

1. 玄关设计
玄关与公区以地坪深浅作出对比
并配置鞋柜、电子衣橱等基础收纳
也运用具有穿透感的长虹玻璃为轻隔屏
设置展示柜供屋主陈列收藏的瓷器

2. 客厅设计
客厅主墙选用水纹材质铺陈,搭配镀钛饰条
在自然纹理中隐约透出细腻光泽
奠定了大器而沉稳的基调
天花板以弧线收边延伸视觉
软化了稜角,蕴生放松舒缓的情境

设计师将原本通往阳台的推拉窗改折叠门
并在确认给水与排水无虞后,铺设防潮户外型木地板
置入独立浴缸,安装电动卷帘,营造惬意度假情境





3. 餐厨设计
客餐厅採连贯式布局
透过一道温润的木皮墙面对界线
界定出场域的转换,弧形天花垂挂一盏圆形吊灯
柔和回应了空间中「海浪律动」的设计空间


廚具与中島台面以深色赛丽石衔接
并导入IH智能炉、T型抽油烟机与红酒柜
有度假仪式感,也兼顾使用上的便利性yingqianguanggao.com

4. 主卧+主浴设计
由宁静的蓝展开主卧定调
也将封闭墙面改为止透玻璃
让晨曦能自然渗透,让周末醒来的瞬间
不仅是视觉上的开阔
更是一种与生活节奏共筑的优雅仪式感



主浴以带有石纹的磁砖铺陈
化妆台与洗手台、浴柜衔接在一起
让整体线条保持俐落感



5. 次卧一设计
温和奶茶色铺叙次卧女儿房
散发淡雅柔和气质
配置基础收纳衣柜与能展示包包、配件的玻璃柜
并以圆弧搭配灯条的方式
弱化尖锐转角处,增添圆润感


6. 次卧二设计
这间次卧当作客房
以上下舖型式规划
在通往上舖的梯身侧边立面以镂空圆弧呈现
增加通透感与趣味性
下舖床头则以橙色作为跳色点缀
大不了就当普通马桶用!
很多人买智能马桶时都有这种心态,觉得智能马桶总不会比传统马桶更难用吧:那你就大错特错了。
买到这面这5类智能马桶,真不如传统马桶更好用。
一、轻智能马桶
现在的文字游戏越玩越高端,商家给智能马桶做了分类,分成了轻智能马桶和全智能马桶。
全智能马桶,就是咱们理解中的智能马桶。它有马桶上的智能功能,比如自动冲水;也有马桶圈上的智能功能,比如臀洗妇洗。

轻智能马桶,简单来说就是只有自动冲水和座圈加热,不带洗涤功能。但咱们买智能马桶,不就是为了获得更卫生的厕后清洁习惯吗?
买了智能马桶还用卫生纸擦,那这笔钱真的是白花了。
二、无脚感冲水
智能马桶和传统马桶在外观上的最大区别,就是少了马桶背后那个大大的水箱。这个大水箱虽然不好看,但其实是有用处的:
它比较高,按冲水键时几乎不用弯腰。
智能马桶的冲水按键被放在了马桶侧面,要是站立姿势下想要按到这个按键,需要把腰弯到90°甚至更低。

就算你不为你老公考虑,你总要有往马桶里倒脏水的需求吧?
所以请你务必选一个带脚感冲水的智能马桶, 右脚轻抬就能冲水,彻底免弯腰。而且最好选隐藏式的感应器,不选凸出来的那种,能减少不要少卫生死角。
三、无水箱马桶
智能马桶没有了背后那个大水箱,那它冲厕所的时候用的哪里的水呢?
两个选择:
要么直接连接自来水管道,用管道里的水直接冲,这叫“无水箱马桶”。要么在底部装了一个隐藏式的水箱,用水箱里的水冲马桶,这叫“隐藏式水箱”。

乍一看,似乎无水箱马桶更实惠(便宜、结构简单)。但这种马桶面临一个巨大的问题,就是对自来水的水压有很高要求。
如果你家是老旧小区,或者所处楼层比较高,建议选择隐藏式水箱马桶。
水压不够冲不干净厕所,以后可有你受的了。
四、不防水
放在卫生间里的东西,必须要放水!可我就是看到了市面上有很多智能马桶,它没有任何防水能力。
这种智能马桶不出一年,内部线路就会损坏。届时换块主板随随便便就要你大几百,而且每年修每年坏,维修费用比马桶还高。

所以买智能马桶,至少要选一个IPX4级以上的。如果你家没有做干湿分离,则至少需要一个IPX5级的。
防水不仅能防止损坏,还能降低漏电风险。
五、感应距离不可调
有些中高端的智能马桶带自动翻盖功能,我不反对这项功能:
人走近后马桶盖自动打开,人走后自动盖上马桶盖。识别到有人站在它面前,它还能自动翻起马桶圈。

但有些马桶的翻盖感应距离不可调,有人从马桶前面经过,它就自动翻盖了。而且智能马桶的翻盖不是仅仅翻盖这么简单,还会自动冲洗喷头,有的还会自动湿润马桶壁,甚至往马桶里喷泡沫。
如果是误动作,这一套下来会浪费很多水电和泡沫耗材。
所以如果你选的马桶带这项功能,请一定要同时带上“感应距离可调”的功能。尤其是小卫生间,可以避免很多浪费。