
南京绿厨厨房设备有限公司
商用厨房设计是一个系统工程,需要综合考虑功能、安全、效率和卫生等多方面因素。以下是核心注意事项的全面梳理:
一、功能分区与动线规划
1. 合理分区
储藏区:干料库、冷藏库、冷冻库应靠近进货口,与加工区相邻
初加工区:蔬菜、肉类、水产应分区域处理,避免交叉污染
热加工区:炉灶、蒸柜、烤箱等按使用频率和出菜顺序排列
备餐区:出菜口与餐厅传菜通道衔接,设置保温设备
清洗区:洗碗间独立设置,配置三槽式或自动洗碗机
辅助区:员工更衣、休息、卫生间等远离加工区域

2. 动线设计原则
原料→加工→烹饪→出菜形成单向流动,避免回流
生熟、洁污分流,人员动线与物流动线分离
传菜通道宽度不低于1.2米,主通道1.5米以上
各工作台间距0.8-1.2米,保证操作空间
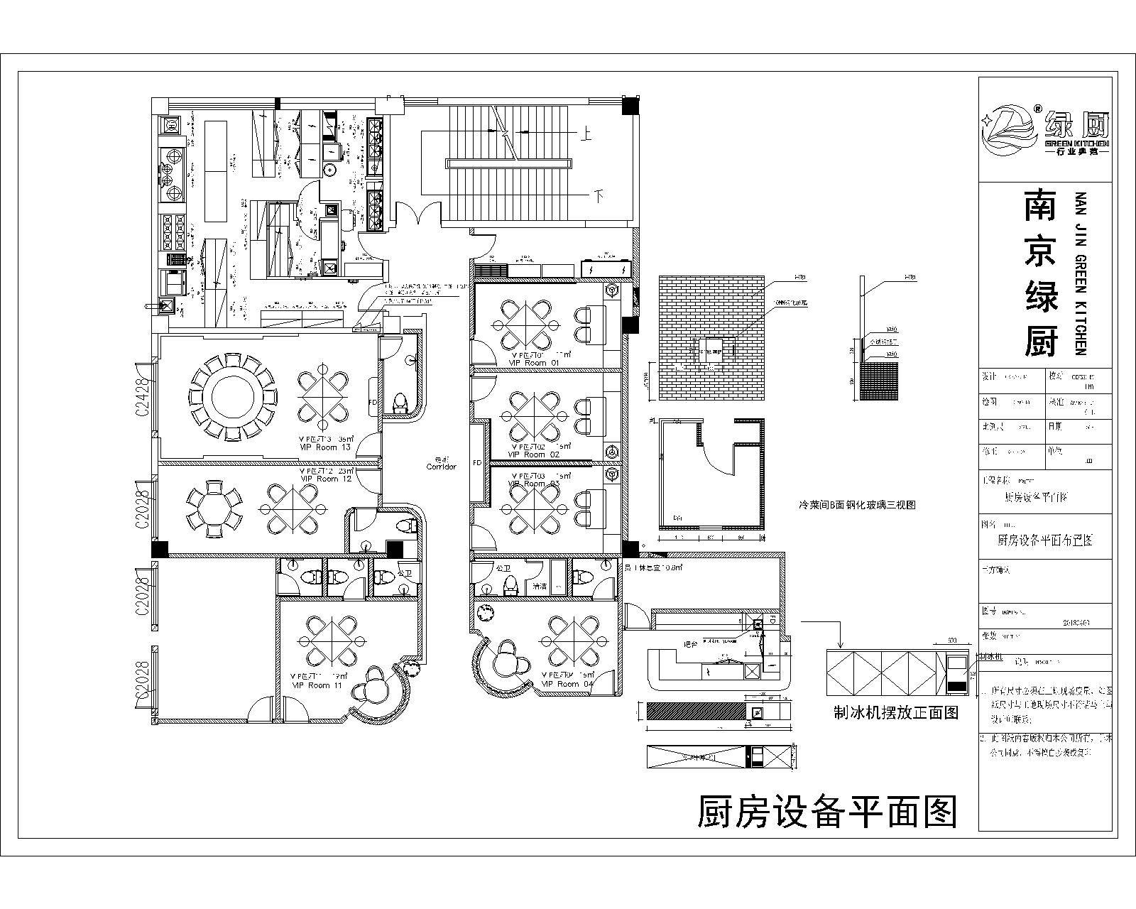
二、设备选型与布局
1. 设备配置要点
根据菜单和餐位数确定设备型号和数量
选择不锈钢材质,符合食品安全标准
功率匹配:大功率设备(蒸柜、烤箱)单独布线
考虑设备散热、排风需求,预留足够空间
2. 关键设备布局
炉灶与切配台距离0.3-0.5米,减少走动距离
冰箱、工作台、水池形成"工作三角",提高效率
油炸设备靠墙放置,远离人流密集区
洗碗机靠近出餐口,便于餐具回收

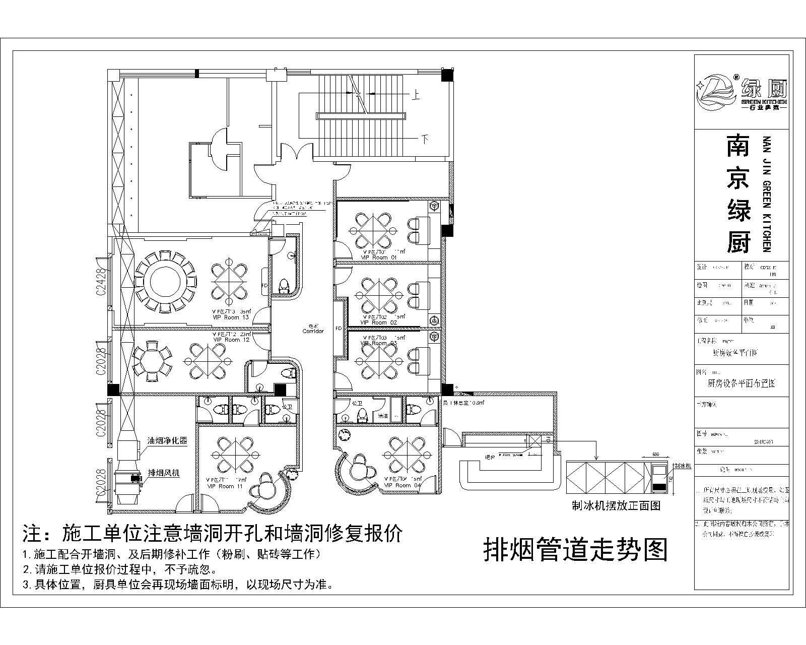
三、通风与排烟系统
1. 排烟要求
炉灶上方安装集烟罩,罩口风速不低于0.5m/s
排风量按换气次数40-60次/小时计算
补风系统需匹配排风量,避免负压
油烟净化器必须达标(净化效率≥85%)

2. 通风设计
厨房整体换气次数20-30次/小时
冷库、更衣室单独设置排风
排风口远离新风入口,避免二次污染
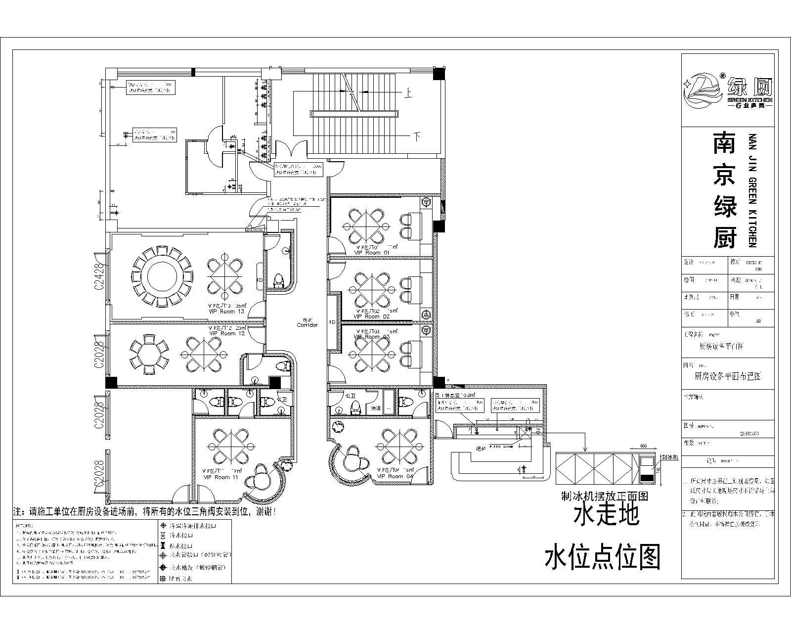
四、给排水系统

1. 给水要求
设置独立热水系统,水温不低于60℃
各功能区预留足够水龙头,间距合理
地面排水坡度1%-2%,地漏采用防臭型
明沟排水需做防渗处理,坡度不小于3%

2. 排水设计
排水管径不小于DN75,主排水管DN100以上
隔油池必须设置,容量按餐饮规模确定
排水沟做不锈钢格栅,便于清洁

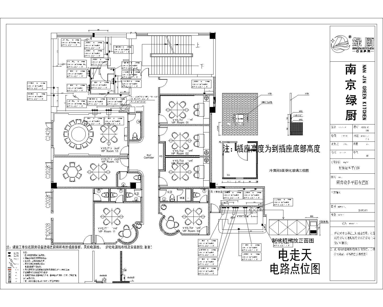
五、电气与照明
1. 电气安全
大功率设备(蒸柜、烤箱等)单独回路
插座采用防水型,高度距地1.3-1.5米
所有金属设备外壳可靠接地
设置漏电保护装置
2. 照明要求
操作台照度不低于300lux,灶台500lux以上
采用防爆、防水灯具,色温4000K左右
应急照明覆盖所有通道和关键区域
六、安全与卫生
1. 安全措施
地面采用防滑地砖,易清洁材质
墙角做圆弧处理,避免积垢
设置灭火系统(自动喷淋、灭火毯等)
燃气管道明装,安装燃气报警器
2. 卫生要求
墙面、顶棚采用光滑、不吸水材料
门窗安装防虫纱网,地漏加装防鼠网
冷库、冰箱设置温度监控
设置员工洗手消毒设施
七、特殊注意事项
1. 法规合规
设计前需了解当地消防、环保、食药监要求
油烟排放、噪音、污水排放需达标
办理相关许可证(食品经营许可证等)
2. 节能环保
选用节能型设备(变频风机、节能炉灶)
余热回收利用(如热水系统)
垃圾分类处理,设置油水分离装置
3. 人性化设计
操作台高度按员工身高调整(一般0.8-0.9米)
设置员工休息区,改善工作环境
考虑未来扩展可能,预留设备位置
八、设计流程建议
需求分析:明确餐厅类型、餐位数、菜单结构
初步规划:功能分区、设备清单、动线草图
深化设计:水电点位、通风排烟、设备定位
专业审核:邀请消防、环保、食药监部门预审
施工配合:现场交底,确保按图施工
关键提醒
专业团队:建议聘请有餐饮设计经验的设计师或专业公司
预算预留:设备、通风、消防等隐蔽工程预算要充足
验收标准:施工完成后需进行设备调试、卫生检测、消防验收
商用厨房设计直接影响运营效率和食品安全,建议在项目前期投入足够精力进行规划,避免后期改造造成更大损失。如有具体项目需求,建议咨询专业设计机构进行现场勘测和定制化设计。
商用厨房设计-就找南京绿厨厨房设备有限公司
专业商用厨房设计-就找南京绿厨厨房设备有限公司
南京厨房设计(南京绿厨厨房设备有限公司)
南京商用厨房设计(南京绿厨厨房设备有限公司)