近日,《巴中乡村地区农房及庭院风貌控制导则》印发实施,包含了总则、通用要求、川东北民居风貌研究、巴中乡村地区农房及庭院风貌控制导则、巴中农村宜居宜业住房设计图集、实施保障机制6部分内容。前期给大家带来了总则、通用要求、川东北民居风貌研究、(景区型、城郊型、一般乡村型)农房风貌引导部分。
今天给大家带来宜居宜业住房设计图集部分
详情如下
▽
一、景区型农房建设指引图集
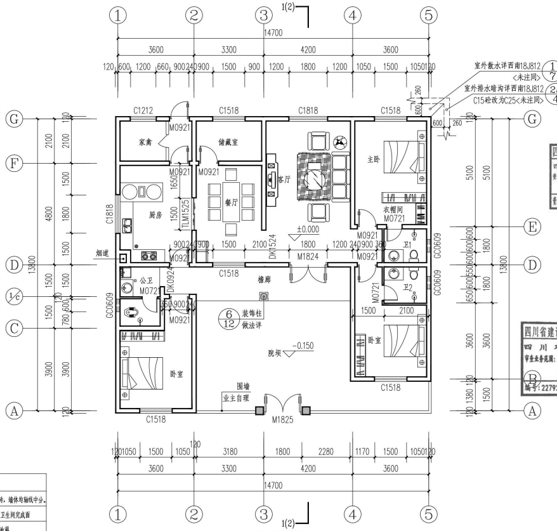
三人户(方案A):住房占地面积119㎡,总占地209㎡(含住房、庭院及附属设施),总建筑面积276㎡,两层,U字型,适用于丘陵及山区两类地域。

建设引导示意

造价估算

一层平面图
本栋建筑面积:275.59㎡
一层建筑面积:144.00㎡
(含附属用房)

二层平面图
二层建筑面积:131.59㎡
三人户(方案B):住房占地面积136㎡,总占地209㎡(含住房、庭院及附属设施),总建筑面积301㎡,两层,L字型,适用于山区地域。

建设引导示意

造价估算

一层平面图
本栋建筑面积:300.50㎡
一层建筑面积:144.74㎡
(含附属用房)

二层平面图
二层建筑面积:155.76㎡
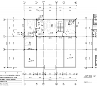
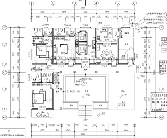
四人户:住房占地面积128㎡,总占地270㎡(含住房、庭院及附属设施),总建筑面积295㎡,两层、U字型,适用于丘陵和山区两类地域。

建设引导示意

造价估算

一层平面图
本栋建筑面积:295.23㎡
一层建筑面积:176.62㎡
(含附属用房)

二层平面图
二层建筑面积:118.61㎡
五人户(方案A):住房占地面积149㎡,总占地225㎡(含住房、庭院及附属设施),总建筑面积261㎡,两层,U字型,适用于丘陵和山区两类地域。

建设引导示意

造价估算

一层平面图
本栋建筑面积:260.90㎡
一层建筑面积:149.31㎡

二层平面图
二层建筑面积:111.59㎡
五人户(方案B):住房占地面积215㎡,总占地349㎡(含住房、庭院及附属设施),总建筑面积393㎡,两层,U字型,适用于山区地域。

建设引导示意

造价估算

一层平面图
本栋建筑面积:393.15㎡
一层建筑面积:214.58㎡

二层平面图
二层建筑面积:178.57㎡
二、城郊型农房建设指引图集
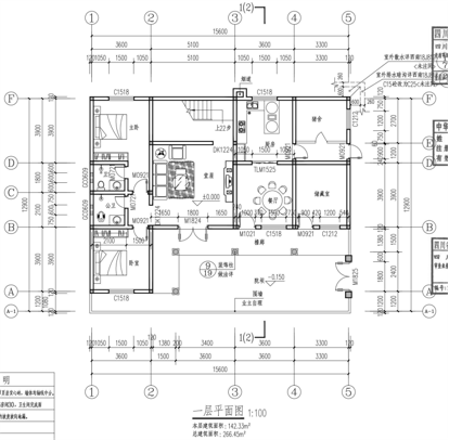
三人户(方案A):住房占地面积106㎡,总占地185㎡(含住房、庭院及附属设施),总建筑面积236㎡,两层,L字型,适用于丘陵和山区两类地域。

建设引导示意

造价估算

一层平面图
本栋建筑面积:236.30㎡
一层建筑面积:129.95㎡
(含附属用房)

二层平面图
二层建筑面积:106.35㎡
三人户(方案B):住房占地面积105㎡,总占地210㎡(含住房、庭院及附属设施),总建筑面积237㎡,两层,U字型,适用于丘陵和山区两类地域。

建设引导示意

造价估算

一层平面图
本栋建筑面积:236.73㎡
一层建筑面积:129.75㎡
(含附属用房)

二层平面图
二层建筑面积:106.98㎡
四人户:住房占地面积132㎡,占地267㎡(含住房、庭院及附属设施),总建筑面积275㎡,两层、U字型,适用于丘陵和山区两类地域。

建设引导示意

造价估算

一层平面图
本栋建筑面积:274.99㎡
一层建筑面积:162.18㎡
(含附属用房)

二层平面图
二层建筑面积:112.81㎡
五人户:住房占地面积170㎡,总占地301㎡(含住房、庭院及附属设施),总建筑面积330㎡,两层,U字型,适用于丘陵和山区两类地域。

建设引导示意

造价估算

一层平面图
本栋建筑面积:330.19㎡
一层建筑面积:196.49㎡
( 含附属用房 )

二层平面图
二层建筑面积:133.70㎡
三、一般乡村型农房建设指引图集
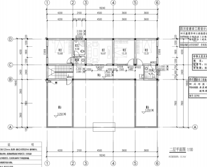
三人户(方案A):住房占地面积115㎡,总占地208㎡(含住房、庭院及附属设施),建筑面积266㎡,两层,L字型,适用于丘陵和山区两类地域。

建设引导示意

造价估算

一层平面图
本栋建筑面积:266.45㎡
一层建筑面积:142.33㎡
(含附属用房)

二层平面图
二层建筑面积:124.12㎡
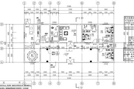
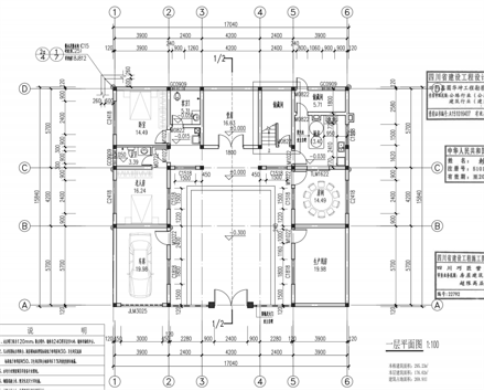
三人户(方案B):住房占地面积134㎡,总占地208㎡(含住房、庭院及附属设施),建筑面积150㎡,一层,U字型,适用于山区地域。

建设引导示意

造价估算

一层平面图
本栋建筑面积:149.76㎡
一层建筑面积:149.76㎡
(含附属用房)
四人户(方案A):住房占地面积128㎡,总占地270㎡(含住房、庭院及附属设施),总建筑面积295㎡,两层、U字型,适用于丘陵和山区两类地域。

建设引导示意

造价估算

一层平面图
本栋建筑面积:295.23㎡
一层建筑面积:176.62㎡
(含附属用房)

二层平面图
二层建筑面积:118.61㎡
四人户(方案B):住房占地面积173㎡,总占地279㎡(含住房、庭院及附属设施),总建筑面积194㎡,一层,L字型,适用于山区地域。

建设引导示意

造价估算

一层平面图
本栋建筑面积:194.35㎡
一层建筑面积:194.35㎡
(含附属用房)
五人户:住房占地面积157㎡,总占地316㎡(含住房、庭院及附属设施),总建筑面积361㎡,两层,U字型,适用于丘陵和山区两类地域。

建设引导示意

造价估算

一层平面图
本栋建筑面积:361.02㎡
一层建筑面积:206.07㎡
( 含附属用房 )

二层平面图
二层建筑面积:154.95㎡



我们将陆续为大家呈现
《巴中乡村地区农房及庭院风貌控制导则》的其他内容
敬请期待吧~