话说,落叶归根、金窝银窝不如自己的狗窝,确实是这样的。在南方,大家总认为,不管你在外面混得再厉害,老家没有一套好点的房子,大家都看不起你。北方要好一点,因为建筑都很统一。而南方就不一样了,做的房子都是根据自己的爱好去审批、去规划、去建设的。对于农村自建房,简约、实用一直以来都是人们青睐和追求的,一栋小小的住宅,住着相亲相爱的一家人,享受着平淡温暖的一日三餐,非常令人羡慕。建一栋好房子,布局合理外观大方,房子建的好,不仅家里人生活过得舒心,在外人看来也大气体面 ,今天农村小别墅设计师推荐这太套二层新中式农村自建房别墅,二层农村精选别墅,抓紧时间先收藏,过完年就能动工盖房
以下我们推出的每套图纸都有详细的尺寸布局,如果里面布局尺寸不满意,还可根据你的要求修改调整内部布局尺寸等,也可以根据你的地基要求量身定做设计,要图纸微我 农村小别墅设计
2026最新流行爆款农村自建房别墅
2026最新流行爆款农村自建房别墅

返乡建房不可错过7款二层新中式别墅,造价低经典实用二层自建房
精选7款二层新中式别墅新款,二层新中式别墅养老房的不二之选
今天给大家带来的是一位朋友的二层别墅设计,希望能给各位即将建房的朋友一点参考。
这个案例给客户提供了两种外观效果选择 :
我个人感觉两种外观都很不错,一个清新脱俗,一个稳重亮丽,客户最终选择了后者。

想要这套图纸的请加我们微信号 可以修改调整尺寸
小编微信号
外观效果一

外观效果二
二层古朴清新二层新中式农村自建房别墅方案一
二层古朴清新二层新中式别墅一
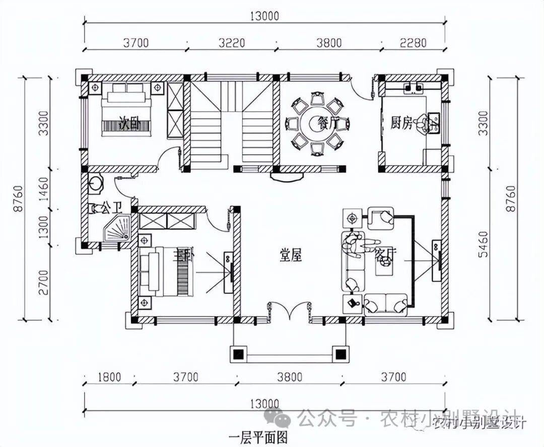
☑ 占地尺寸:13米×9米
☑ 占地面积:110平方米
☑ 建筑面积:240平方米
☑ 建筑高度:一层3.6米,二层3.4米
一层平面图:


方案二的变化没有多大,只是把卧室统一放到了一边,让动静分区变得更加明显和和谐,当然萝卜白菜各有所爱,每个人的需求各不相同,怎么选择,随心走。
一层:一因为建房地点在农村,所以堂屋的配置是必须的选择,为了扩大空间的效果,我们选择了将客厅堂屋结合的形式,一楼在东西两侧各设置了一个卧室,为满足父母亲闲时打发时间的需求,西侧的卧室也可以改成麻将室,这样睡觉与活动就不会那么干扰了,厨房的贮藏室可以根据客户的需求灵活处理使用的用途,也有客户希望在这里增加一个主人房卫生间的。
二层平面图:

二层:二楼平时都是过年过节子女回来居住,考虑到儿女都已长大成人,组建了各自的家庭,所以在二楼设置了4个卧室和一个独立使用的起居室,老人、小孩各得其所,其乐融融。
项目实景照片:

正面实景照片

东侧实景照片
下面是根据客户提供的基础尺寸数据和现场照片绘制的地形图

地形图
喜欢这款别墅的朋友估计现在最迫切的心情就是想看到室内的布局了,同效果图一样,室内布局也提供了两种不同的方案供客户选择。
总之: 很多人在外做生意和打工,钱也挣得不少,平时也不常回老家,一直没有时间和精力把自家房子修缮一下,马上要放假了,坐下来一起商量一下,如何在自家宅基地建一栋漂亮的房子才好。
01二层欧式别墅
房屋信息
☑ 占地尺寸:10.5米x9.9米
☑ 占地面积:103.62平方
☑ 建筑面积:207.42平方米
☑ 建筑结构:砖混结构
☑ 建筑高度:9.9米
☑造价估算:18万
效果图


想要这套图纸的请加我们微信号 可以修改调整尺寸
小编微信号
此款别墅占地规整,三层设计有效利用宅地面积,多边形采光窗,是别墅亮点,丰富了建筑立面语言的同时,也更好地优化了采光。
整体设计精致巧妙,内设5卧2客厅双露台等,另外还根据农村居住习惯设有堂屋神位,将品质生活与传统习俗相结合,适合广大地区建造。
一层平面图:
一 层: 玄关、客厅、餐厅、厨房、卧室、车库、卫生间

二层平面图:
二 层: 小客厅、卧室(附书房)、卧室X3、公卫、阳台

这是一幢紧凑型别墅,适合家庭人口较多的住户。房间布局简洁紧凑,交通面积较少,空间利用率很高,外观时尚现代,色调明快清新,令人耳目一新。
02二层现代别墅

想要这套图纸的请加我们微信号 可以修改调整尺寸
小编微信号
建筑信息:
房屋信息
☑ 占地尺寸:11.7米x10米
☑ 占地面积:109.56平方米
☑ 建筑面积:197.43平方米
☑ 建筑结构:砖混结构
☑ 建筑高度:9.7米
☑ 造价估算:26-32万
效果图

一层平面图:

二层平面图:

这是一幢舒适性别墅,较01别墅空间更为开阔,共有4个卧室,以及书房等基本功能用房。该别墅适合1对夫妻+2~3个孩子+1对老人共同居住。方案空间布局大方简洁,采光通风良好,建筑错落有致,造型美观高雅。

想要这套图纸的请加我们微信号 可以修改调整尺寸
小编微信号



想要这套图纸的请加我们微信号 可以修改调整尺寸
小编微信号
而且如今农村建房再也不是以前那般单一的户型了,现在什么时尚现代风、经典欧式风、简欧风、中式风格和新中式风格多种多样,甚至于每种风格下还能再细分下去,各种各样潮流新款层出不穷,但是要说什么样的别墅款式经久不衰、永不过时,那传统中式和新中式风格绝对是当仁不让。传统中式比较可惜的是对占地要求比较高,配套中式家具往往价格不低,而新中式的话,只要能做到占地三开间,新中式风格轻轻松松便可拿捏,面积不大照样能有大气恢弘的感觉
以下我们推出的每套图纸都有详细的尺寸布局,如果里面布局尺寸不满意,还可根据你的要求修改调整内部布局尺寸等,也可以根据你的地基要求量身定做设计,要图纸微我 农村小别墅设计