在城市的喧嚣之外,总有一方天地,能让心灵寻得栖息之所。这栋中式风格别墅,便是这样一处充满诗意与温情的所在,它以传统中式元素为笔,以院落生活为墨,绘就出一幅令人心醉的人居画卷。

先看外观,新中式风格,白墙配深色屋顶,简约又大气,往村里一放,绝对是“颜值担当”,亲戚朋友来了都得夸。今天农村小别墅设计师精选28套二层四开间农村自建房别墅,2025年建房首选新中式别墅住宅户型
2025最新流行爆款农村自建房别墅
2025最新流行爆款农村自建房别墅

想要这套图纸的请加我们微信号 可以修改调整尺寸
小编微信号
二层新中式农村自建房别墅
☑ 占地尺寸:14.54米×13.12米
☑ 占地面积:200平方米
☑ 建筑面积:280平方米
☑ 建筑高度:一层3.6米,二层3.3米
一层平面图:
再唠唠户型,太适合咱们一大家子住了。一层有客厅、餐厅、厨房,还有三间卧室,家里老人住一楼,不用爬楼梯,方便得很。厨房连着餐厅,做好饭直接端上桌,唠着嗑就把饭吃了。

二层平面图:
二层更安逸,有起居室、茶水间,还有三间卧室和衣帽间。平时一家人在起居室看看电视、喝喝茶,多温馨。卧室带独立卫浴,隐私性拉满,谁不想拥有一个属于自己的小天地呀。那个衣帽间,女孩子看了都走不动道,能装老多衣服、包包了。

而且不管一层还是二层,都有大窗户,采光那叫一个好,白天在家都不用开灯。阳台也不小,没事在这晒晒太阳、种种花,舒服得很。

想要这套图纸的请加我们微信号 可以修改调整尺寸
小编微信号
面宽18米进深11米,大户型二层别墅。
二层新中式农村自建房别墅
☑ 占地尺寸:18米×11米
☑ 占地面积:200平方米
☑ 建筑面积:396平方米
☑ 建筑高度:一层3.6米,二层3.3米
一层平面图:
宅基地东西面宽大,可以这么布局。

进门布置堂屋,客厅,北侧布置厨房餐厅。
四间卧室分布四个角,棋牌室面对楼梯开门。

二层平面图:

二层布置五间卧室,还布置了健身房,起居室,起居室设计小阳台,南向左右两间卧室也设计小阳台,增加建筑外观层次。

想要这套图纸的请加我们微信号 可以修改调整尺寸
小编微信号
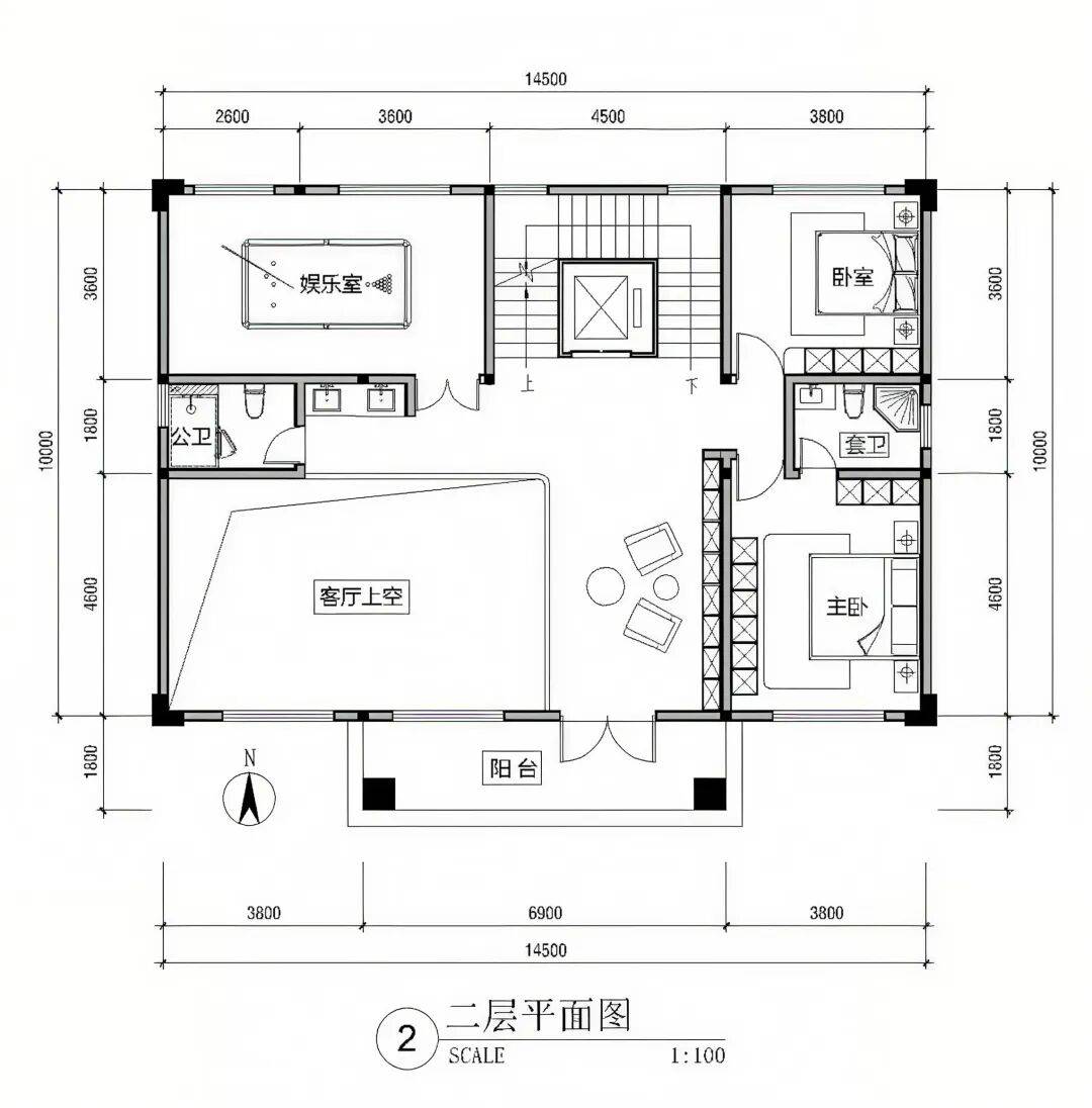
面宽14.5米,进深10.0米,二层乡村别墅户型布局图
二层新中式农村自建房别墅
☑ 占地尺寸:14.5米×10米
☑ 占地面积:150平方米
☑ 建筑面积:290平方米
☑ 建筑高度:一层3.6米,二层3.3米
一层平面图:
二层带电梯。

一层功能布局:布置茶室,客厅,餐厅及两间卧室,南向卧室能布置独立卫生间更好。
二层平面图:

二层功能布局:布置娱乐室,小客厅及两间卧室。客厅做了挑空设计,客厅非必要不挑空,浪费空间,浪费资源。

想要这套图纸的请加我们微信号 可以修改调整尺寸
小编微信号
在钢筋水泥的城市中奔波日久,我们心底那份对“根”的眷恋,往往会在某个瞬间悄然苏醒。于是,越来越多的80、90后,带着都市的视野与审美的积累,选择回归乡村,在一方熟悉的宅基地上,亲手构筑属于自己的“理想国”。




想要这套图纸的请加我们微信号 可以修改调整尺寸
小编微信号




想要这套图纸的请加我们微信号 可以修改调整尺寸
小编微信号




想要这套图纸的请加我们微信号 可以修改调整尺寸
小编微信号





想要这套图纸的请加我们微信号 可以修改调整尺寸
小编微信号





想要这套图纸的请加我们微信号 可以修改调整尺寸
小编微信号





想要这套图纸的请加我们微信号 可以修改调整尺寸
小编微信号



想要这套图纸的请加我们微信号 可以修改调整尺寸
小编微信号

这不仅仅是一次简单的“盖房子”,更是一场关于生活方式的深度思考与实践。家,早已超越了其属性,它是我们精神世界的投射,是灵魂得以安放的温柔港湾。我们渴望的,不再是千篇一律的“火柴盒”或堆砌奢华的“小洋楼”,而是一座能够真正回应内心需求、承载家庭记忆、并与这片土地和谐共生的建筑。
自建房,正因此而变得“有温度”、“有故事”。它不再是简单的功能集合,而是设计美学与生活智慧的结晶。
因此,那些令人心动的自建别墅案例,不仅仅是可供“抄作业”的范本,更是启发我们思考如何将对生活的热爱,融入一砖一瓦的灵感源泉。毕竟,最美的房子,永远是那个让你第一眼就心生欢喜,并愿意为之倾注一生情感的地方。